Řadové domy Golf Michalovice – Mladá Boleslav

Po úspěšném projektu 5 řadových domů Na Vandrovce a 14 řadových domů Na Celně představujeme projekt 10 řadových domů v Mladé Boleslavi – lokalita Golf Michalovice.

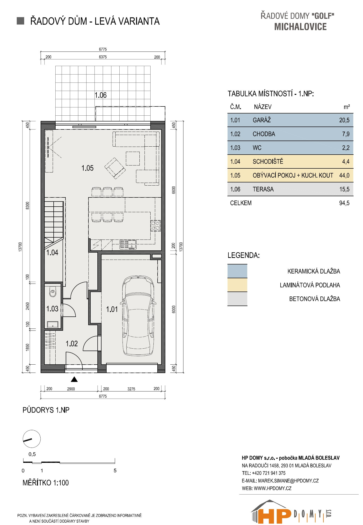
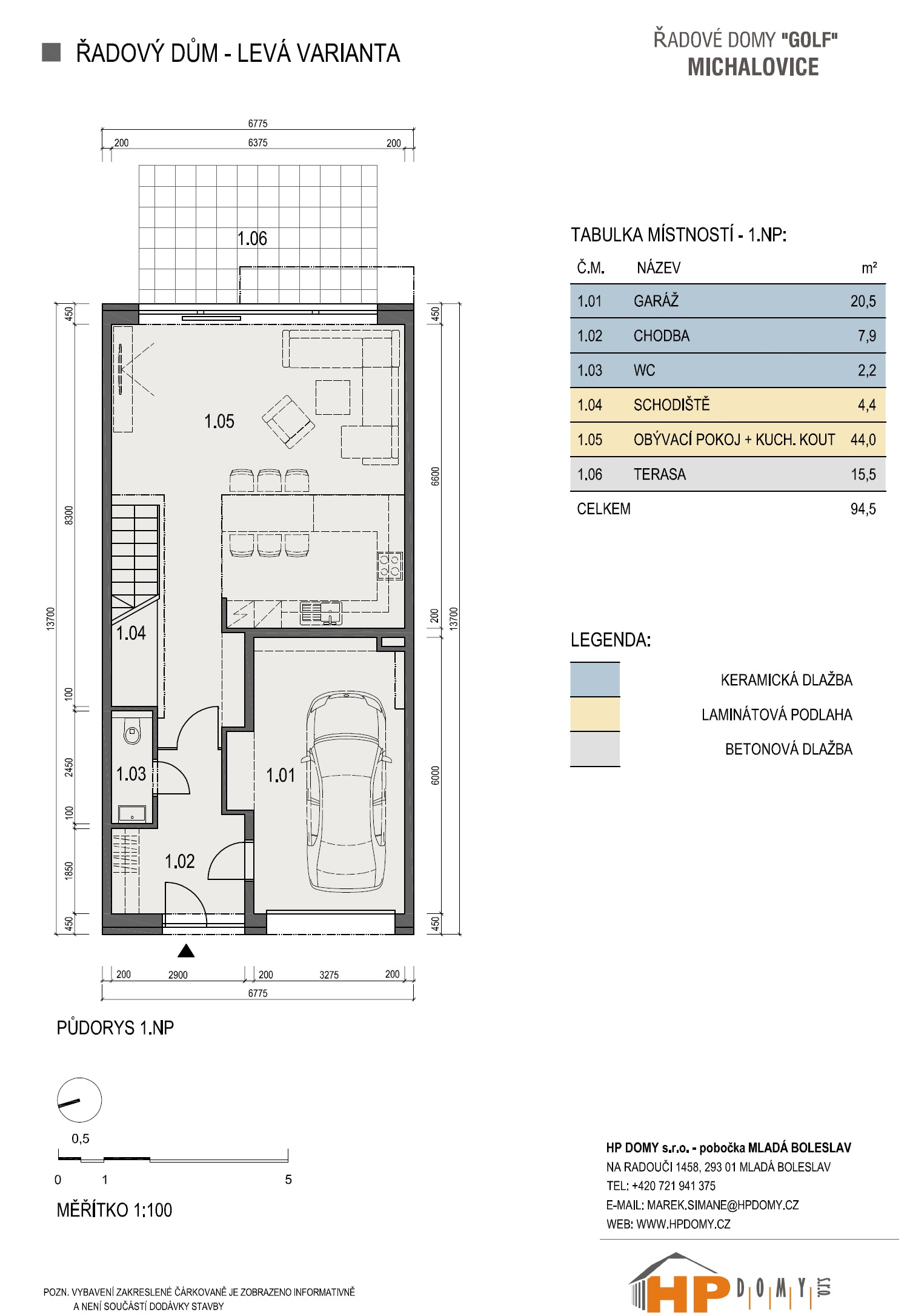
Celý projekt se nachází na pozemku s jihovýchodní orientací zahrad a je prostorově uspořádán do jednoho bloku. Všechny domy mají přístup ze zahrad do přilehlého parku. Přístup k domům bude zajištěn po stávající asfaltové komunikaci. Samozřejmostí je napojení domů na veškeré inženýrské sítě – voda, kanalizace a elektřina. Všechny domy budou dvoupodlažní s velmi příjemně a na uspořádání komfortně řešenou dispozicí 5+kk a do parteru umístěnou garáží s technickým koutem a se vstupem do obytné části. Další možnost parkování je před garáží. Celková užitná plocha je u všech deseti domů shodná – 156 m2. Užitná plocha je dále rozšířena o terasu s výměrou 15,5 m2.