Popis realizované stavby

Zděný rodinný dům v obci Kolomuty u Mladé Boleslavi je řešen jako individuální projekt dle přání klientů.

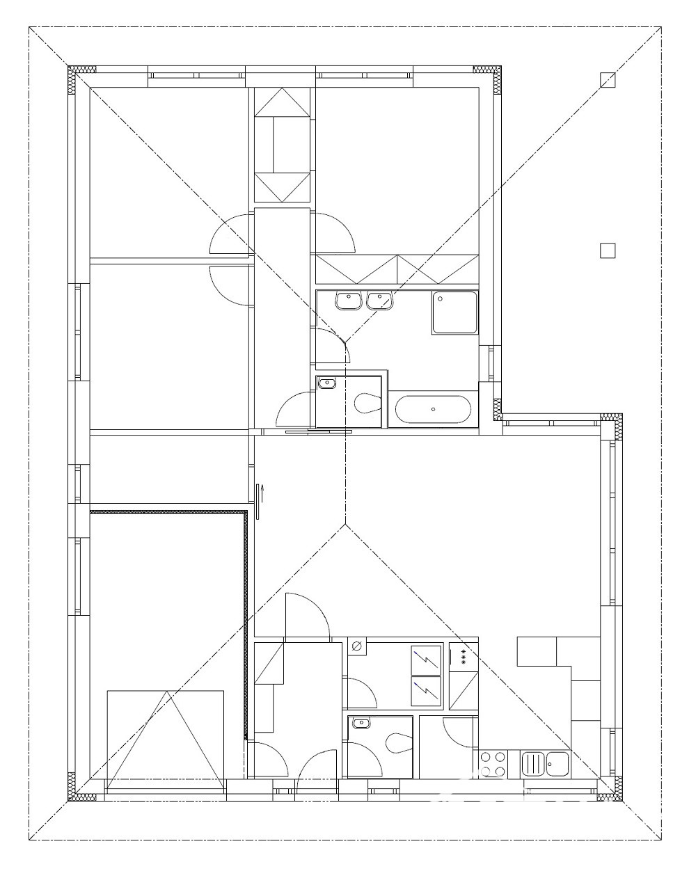
Dům je navržen jako 4+kk s užitnou plochou 124 m2 a jeho nedílnou součástí je skoro osmnáctimetrová zastřešená terasa vnořená do půdorysu domu. Klienti zvolili zděnou variantu stavby s teplovodním podlahovým vytápěním v kombinaci s elektro kotlem. Součástí dodávky byl i komín Schiedel s krbovými kamny.