Katalog domů
▾
Dřevostavby na klíč
Zděné domy na klíč
Domy 3+kk
Domy 4+kk
Domy 5+kk
Domy s garáží
Domy do 4 milionů
Domy do 5 milionů
Domy do 6 milionů
Malé domy
Velké domy
Realizace
▾
Domy na klíč
Developerské projekty
O Stavbě
Blog
Kontakt
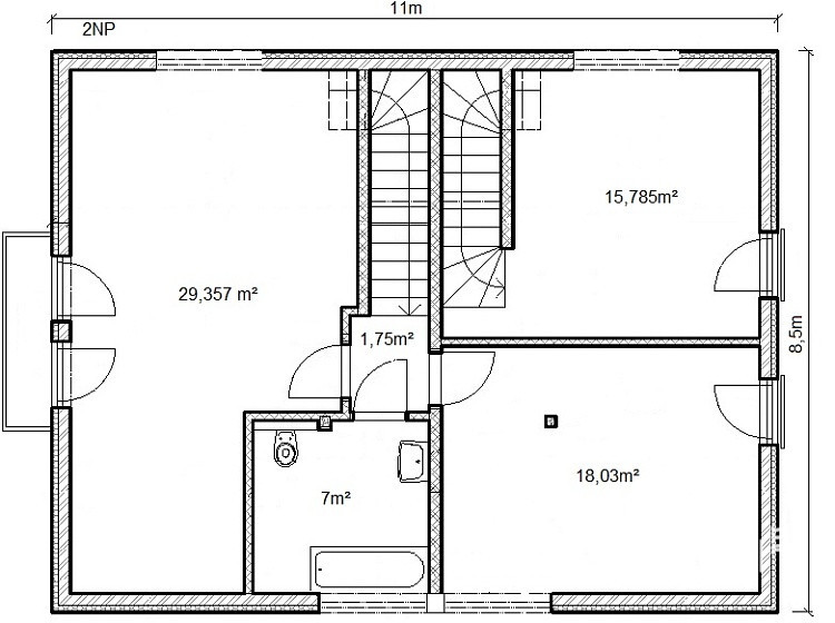
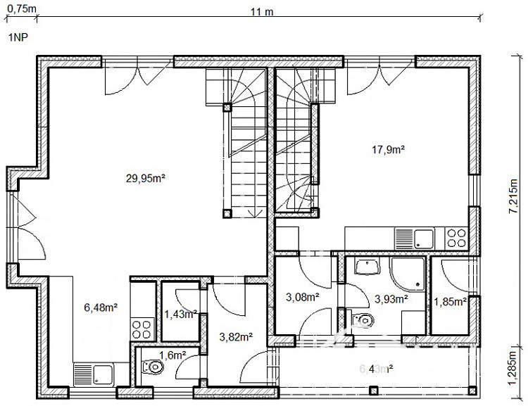
Individuální stavba, Prostějov
Popis realizované stavby
Patrový dům s dvěma bytovýma jednotkami, z nichž každá disponuje samostatným vchodem.
Zjistit více o Individuální stavba
Další realizace